Efficienza energetica
- APE: In corso di redazione
Nozioni di base
- Riferimento: F238B
- Vani: 4
- Piano: 3
- Ascensore: No
- Spazio esterno: Sì
- Riscaldamento: Autonomo
- Data aggiunta : Aggiunto 1 mese fa
- Aria Condizionata: Predisposizione
- Categoria : Vendita
- Camere da letto: 3
- Bagni: 2
- Anno ristrutturato: 2026
Descrizione
-
Descrizione:
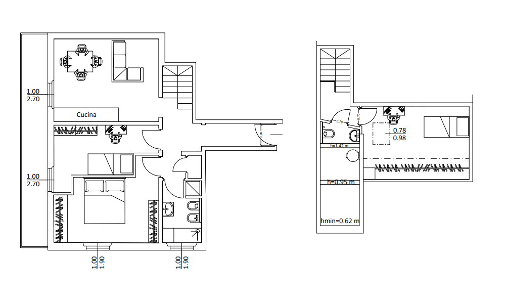
Proponiamo in vendita, in una delle zone più richieste e ben servite di Firenze, splendido appartamento di 80mq, completamente ristrutturato, situato al terzo ed ultimo piano di una caratteristica palazzina del ’900 (senza ascensore, scale comode). L’immobile si trova in strada silenziosa, ideale per chi desidera tranquillità pur restando a pochi minuti dai principali servizi e collegamenti. L’appartamento, in fase di ristrutturazione, si sviluppa su due piani, con una distribuzione degli spazi funzionale e moderna: ingresso accogliente, luminoso soggiorno con angolo cottura, camera matrimoniale ampia e molto luminosa, due camere singole, doppi servizi, comodo ripostiglio. Dalla cucina ed una delle camere è possibile accedere ad un lungo balcone, con affaccio ad ovest. L'appartamento avrà a disposizione impianti nuovi e certificati a norma, predisposizione per l' aria condizionata, infissi a taglio termico, garantendo anche ottimo isolamento e comfort abitativo. Soluzione ideale per famiglie o per chi desidera un’abitazione moderna in contesto d’epoca, in una delle aree più apprezzate della città. In fase di visita sarà possibile consultare il capitolato lavori e materiali. APE-IPE: in fase di redazione. Prezzo richiesto: € 375.000 Consegna prevista: primi di settembre 2026 RIFERIMENTO: F238B.
Mostra tutta la descrizione
Posizione
Servizi e Caratteristiche
- Caratteristiche: